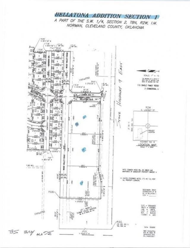
Zoning is C-1, commercial and is final platted and approved by the City of Norman. City water and sewer and other public utilities are on site. This lot is building permit ready for buyer. Great location along Highway 9 just east of the Postal Training Center with high traffic count and visibility along State Highway 9 and easy access. To the north, east and west there are large residential developments. Seller would cooperate with subdividing for potential buyers and accommodate existing site plans, specific acreage or layout requirements. Lot is in the middle lot of three in Block 16.
Listed By
Agency Name: Dillard Cies Real Estate
Agency Phone: 405-366-7707
Agent Name: Thomas McAuliffe
Shown By
Agency Title: Crossland Real Estate
Agency Phone: 405-604-6800
Estimated Payment
$ 1,252.11 per month $1,101.66 Principal & Interest $6.08 Property Tax $144.38 Homeowner's Insurance



3750 Wood Valley Road | MLS# 1068509
This land located at 3750 Wood Valley Road, Norman, OK 73071 is currently listed for sale with an asking price of $495,000. The property has approximately 1.91 Acres. Search Norman real estate on www.gocrossland.com today.