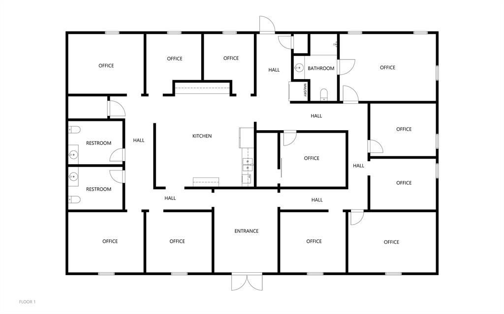
Located in the heart of Choctaw, this versatile professional office building offers 11 private offices, a central kitchen/breakroom, a dedicated server/IT room, washer/dryer hookups, and two offices with existing water lines-ideal for medical, therapy, esthetics, or other service-based uses. A private suite with its own full bathroom provides added flexibility for an owner-operator or premium tenant.Situated on an approximately half-acre lot, the property offers room for future parking adjustments, outdoor space, or potential expansion (subject to approvals). Layout can support a single occupant or a multi-tenant configuration. Seller is a licensed general contractor and open to reasonable modifications.Conveniently located just off the main commercial corridor, this location benefits from steady local growth, strong household incomes, and proximity to Oklahoma City and Tinker AFB, making it an excellent option for professional service users seeking space in an established, growing community.
Listed By
Agency Name: Metro Group Brokers LLC
Agency Phone: 405-737-4700
Agent Name: Amy Taylor
Shown By
Agency Title: Crossland Real Estate
Agency Phone: 405-604-6800




1917 Commerce Street | MLS# 1210818
This commercial property located at 1917 Commerce Street, Choctaw, OK 73020 is currently listed for sale with an asking price of $499,900. Search Choctaw real estate on www.gocrossland.com today.